首页
|
每日头条
|
新房动态
|
二手房
|
海房专题
|
楼市画报
|
楼市地图
|
楼书鉴赏
别墅
|
楼盘实景
|
土地拍卖
|
城建频道
|
每日交易
|
地产咔溜
|
业主论坛
金辉伯爵山
广告效果图
项目实景图
项目户型图
一居室
两居室
三居室
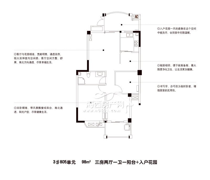
99.21平 三房两厅一卫一阳台带入户花园
关于我们
|
公司招聘
|
广告服务
|
网站地图
|
免责声明
|
联系方式
|
友情链接
h0591.com © 2016 西普传媒 版权所有
闽ICP备11002896号
客服电话:0591-83784488 客服QQ:
18512029
378670880
466844322